Проект деревянного дома№101
Посмотреть цену на строительство этого проекта можно здесь
Общая площадь — 385,3 м2
Площадь 1 этажа — 256,6 м2
Веранда — 48,3 м2
Гостиная — 36,0 м2
Кухня — 12,9 м2
Столовая — 16,6 м2
Спальня — 20,9 м2
Комната отдыха-тренажерный зал — 24,0 м2
Массажный кабинет — 7,5 м2
Зимний сад — 17,2 м2
Сауна — 23,0 м2
Котельная — 6,0 м2
Раздевалка — 7,7 м2
Холл — 22,3 м2
Санузел — 5,1; 3,9 м2
Ванная — 5,2 м2
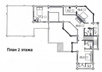
Площадь 2 этажа — 128,7
Кабинет — 17,2 м2
Холл — 40,6 м2
Спальня — 25,0; 16,6 м2
Гардеробная — 8,2 м2
Ванная — 5,1; 5,1 м2
Балкон — 6,2; 4,7 м2
Дом весом и устойчив. Его зонирование и планировочные решения недвусмысленно свидетельствуют о стремлении удовлетворить взыскательный и искушенный вкус хозяев. Интересные детали экстерьера — разноуровневые кровли, большая площадь остекления и дизайн окон, использование в отделке резных элементов — делают его неповторимым. Дом рассчитан на постоянное проживание 2-3 человек (с возможностью размещения 1-2 помощников по хозяйству). Здесь удобно принимать гостей, организовывать праздники, приглашать на выходные друзей. В качестве альтернативы дом может быть использован для создания резиденции. Фундамент: монолитный. Стены выполнены из клееного профилированного бруса Zuokatti 202 х 219 мм.
Недавно просмотренные товары
- Проект деревянного дома№163 (Категория: Проекты деревянных домов)
- Проект деревянного дома№139 (Категория: Проекты деревянных домов)
- Проект деревянного дома№143 (Категория: Проекты деревянных домов)
- Проект деревянного дома№115 (Категория: Проекты деревянных домов)




















